Vila Košťál (osada Baba)
| Vila Košťál | |
|---|---|
![]() Vila Košťál | |
| Základní informace | |
| Sloh | funkcionalismus |
| Architekt | František Kerhart |
| Pojmenováno po | Jan Košťál |
| Poloha | |
| Adresa | Dejvice, |
| Ulice | Na ostrohu |
| Souřadnice | 50°6′56,23″ s. š., 14°23′13,55″ v. d. |
| Další informace | |
| Některá data mohou pocházet z datové položky. | |
Vila Košťál je jednou ze staveb Osady Baba. Nese jméno po profesorovi ČVUT Ing. Janu Košťálovi, který nechal dům vybudovat pro svou čtyřčlennou rodinu. On sám stál u zrodu základních nákresů domu, avšak jeho architektem byl František Kerhart. V současné době se vila renovuje a k její dostavbě by mělo dojít koncem roku 2017.
Popis vily
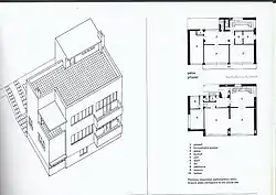
Vila se nachází v Pražských Dejvicích v Osadě Baba, která je celá vystavěna ve funkcionalistickém stylu První republiky. Stejně jako u ostatních domů ve druhé řadě je vstup orientován ze severu. Díky této skutečnosti se druhá strana budovy (směrem na jih) vyznačuje velikými okny a tudíž je prostor domu velice krásně osvětlen. Samotný prostor je tvořen dvěma patry s velikou střešní terasou, ze které je nádherný pohled na celé město. František Kerhart kombinoval železobetonovou konstrukci s obvodovým cihelným nosným zdvihem o tloušťce 45 cm. Uvolnil tak vnitřní dispozici pro standardní funkcionalistické řešení, s obytnými prostorami v přízemí a ložnicemi v patře. Oproti původnímu projektu autor zvětšil obytné pokoje (přízemí) tím, že předsadil mohutný podélný arkýř před konstrukci. Tím zároveň vznikla úzká balkonová terasa před ložnicemi (patro). Díky svažitosti terénu se přízemí jeví jako patro (z pohledu z jihu). Stavebník Jan Košťál si přál umístit garáž v suterénu a právě díky spádu terénu se jeho požadavek stal řešitelným.

Výstavba vily



Zajímavostí je, že dům byl postaven až po výstavbě okolní Osady Baba roku 1934. Vzhledem k této skutečnosti byla dodatečně publikována společně s vilou č. 30 Jana Bělohrádka v časopise Architektura[1] a následně doprovázely některé půdorysy publikovanou přednášku Oldřicha Stefana u příležitosti výstavy "Za novou architekturu" v roce 1940.[2]
Odkazy
Reference
Literatura
- Osada Baba plány a modely (autoři: Tomáš Šenberger, Vladimír Šlapeta, Petr Urlich)
- Slavné vily Prahy 6 - Osada Baba 1932-1936 (autoři: Petr Urlich, Vladimír Šlapeta, Alena Křížková)
Externí odkazy
Obrázky, zvuky či videa k tématu Vila Košťál na Wikimedia Commons
