Théveninova věta
Théveninova poučka (Théveninův teorém) o náhradním zdroji napětí tvrdí, že lze libovolně složitý lineární obvod nahradit obvodem skutečného zdroje napětí, připojeným k libovolným dvěma svorkám. Tento postup se dá aplikovat v obvodech, kde je třeba spočítat pouze proud v jedné větvi obvodu. Obdobou je Nortonův teorém.
Princip objevil Hermann von Helmholtz v roce 1853, v roce 1883 jej znovuobjevil francouzský telegrafní inženýr Léon Charles Thévenin, po němž je dnes nazýván.
Postup

- Označíme si 2 svorky
- Obvod si rozdělíme na dvě části - zátěž (prvek, větev na které chceme vypočítat tekoucí proud) a druhá část bude zbytek lineární soustavy
- Podle Theveninovy věty lze zbytek lineární soustavy nahradit skutečným zdrojem napětí. Ten je tvořen vnitřním napětím (ten určíme jako napětí naprázdno mezi svorkami) a vnitřním odporem (ten určíme jako celkový odpor lineární soustavy mezi svorkami při odpojené zátěži, když zdroje vyřadíme)
- Při výpočtu nahradíme zdroje jejich vnitřními odpory, tj. ideální zdroj napětí (IZN) zkratujeme a ideální zdroj proudu (IZP) rozpojíme.
Příklad

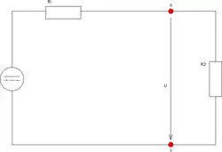
Mějme obvod u kterého chceme vypočítat proud na rezistoru . Viz obrázek.
Nejdříve si označíme svorky (např. a ) na rezistoru R2 a tento rezistor odpojíme. Tento rezistor tvoří tzv. zátěž. (Obr. 1)

V tomto obvodu bez připojeného rezistoru R2 vypočítáme proud, který protéká obvodem. Ten se rovná podle Ohmova zákona:
Vnitřní napětí náhradního zdroje určíme jako napětí mezi svorkami a . Proud vytváří na jednotlivých rezistorech úbytky napětí , , . Ty se rovnají:
Obvod si můžeme pro lepší pochopení překreslit (Obr. 2)

a zapojení vlastně vytváří nezatížený dělič napětí. V tomto případě se napětí mezi svorkami rovná:
Při výpočtu vnitřního odporu náhradního zdroje nejprve odpojíme zdroj napětí, a to tak, že tento zdroj zkratujeme. Překreslený obvod je na obrázku č. 3.

Tento obvod zjednodušíme a výsledný odpor se rovná vnitřnímu odporu zdroje ():
Výsledné schéma náhradního obvodu se skutečným zdrojem napětí je vidět na obrázku č. 4.

Teď, když známe svorkové napětí a vnitřní odpor zdroje, můžeme vypočítat proud tekoucí rezistorem :
Související články
Externí odkazy
Obrázky, zvuky či videa k tématu Théveninova věta na Wikimedia Commons