Národní házená
Národní házená neboli také česká házená byla založena v roce 1905 jako původní kolektivní míčová hra pro ženy.
| Národní házená | |
|---|---|
| Vrcholné soutěže | |
| 1. liga muži | 2024/25 |
| 1. liga ženy | 2024/25 |
| 2. liga muži A | 2024/25 |
| 2. liga muži B | 2024/25 |
| Národní svaz | |
| Název | Svaz národní házené (SNH) |
| Založen | 1905 |
| Web | Svaz národní házené |
Princip hry
Principem hry je vhodit míč soupeři do branky. Na hřišti proti sobě hrají 2 týmy. V každém týmu hraje 7 hráčů. V poli tedy jsou 3 útočníci, 2 záložníci, 1 bek neboli obránce a 1 brankář. Hrací plocha je rozdělena na 3 třetiny: obrannou, střední a útočnou. Jak už název vypovídá, hraje se rukama, speciálním míčem. Každý hráč může nést míč 2 vteřiny, poté s ním musí klepnout (dribnout) o zem. To může hráč udělat maximálně dvakrát. Vítězí tým, který nastřílí za hrací dobu 60 minut větší počet gólů.
Útočník

Útočník se může pohybovat pouze ve své útočné a střední třetině a může vstupovat do brankoviště. Jeho hlavním úkolem je vstřelit gól. Při střelbě nesmí stát nebo naskočit do brankoviště.
Záložník a obránce

Záložník se smí pohybovat ve střední a obranné třetině, ale nemůže vstoupit do brankoviště. Jeho úkolem je bránit protivníkovi ve střelbě.
Stejnou úlohu má i obránce (lidově nazývaný bek), který se může navíc pohybovat i v brankovišti.
Brankář

Brankář se může pohybovat ve střední a obranné třetině a v brankovišti. Má za úkol krýt střely soupeře ve vlastní bráně. Může případně zasáhnout míč i nohou, pokud je cílem tohoto dotyku zabránit míči v letu do brány.
Pravidla
1. Hřiště

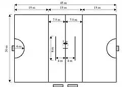
Národní házená je venkovní hra. Hřiště má tvar obdélníku o rozměrech 45x30 metrů (povolená tolerance –5 %). Povrch hřiště je dnes už z pravidla z umělých materiálů. Hřiště musí být vyznačeno dobře viditelnými a s barvou jeho povrchu kontrastujícími čarami širokými 6–8 cm. Hřiště je rozděleno třetinovými čarami rovnoběžnými s půlicí čarou na obrannou, střední a útočnou třetinu o stejných velikostech. Obranná třetina jednoho družstva je současně útočnou třetinou soupeře.
2. Branky
Branky mají rozměr 2×2,40 metrů, pro mladší žactvo 2×2,20 metrů. Tvoří je dvě čtyřhranné tyče vzdálené 2 m a spojené ve výši 2,40 m příčným břevnem. Nejmenší síla tyčí je 80×80 mm, největší 100×100 mm. Tyče a břevno branky jsou natřeny bílou nebo modrou barvou .
3. Míč
Míč je vyroben z kůže nebo z umělého materiálu. Na pohled připomíná zmenšený volejbalový míč, avšak je těžší. Obvod míče nesmí být menší než 580 mm a větší než 605 mm. Na začátku utkání musí být jeho hmotnost nejméně 290 g a nejvíce 420 g (rozhoduje začátek utkání, protože např. za deště se míč může trochu nasáknout a ztěžknout v průběhu hry).
4. Počet hráčů
Družstvo může nastoupit maximálně s 15 hráči při čemž hraje vždy max. 7 z nich – 6 hráčů v poli a 1 brankář. Při zahájení hry musí nastoupit na hřiště všichni hráči, kteří jsou zapsáni v zápisu o utkání. Na konci 1. poločasu a na začátku 2. poločasu nastupují pouze aktuálně hrající - většinou 7 z každého týmu (brankář, obránce, dva záložníci a tři útočníci). Na konci utkání nastupují opět všichni hráči.
5. Střídání hráčů
Střídat je možno jen na vlastní polovině střední třetiny, kde se nachází vlastní střídačka. Střídající hráči mohou vystřídat kteréhokoliv hráče (kromě vyloučených) kdykoliv v průběhu hry, i brankář brankáře.
6. Výstroj hráčů
Celé družstvo musí být jednotně sportovně oblečeno ve stejně barevných dresech a stejně barevných trenýrkách. Jen brankáři musí mít dres barevně odlišný od hráčů v poli. Všichni hráči včetně brankářů musí mít na zádech dresu číslo v barvě odlišné od barvy dresu. Záložníci (nesmí vstupovat do brankoviště) musí mít na pažích pásky, aby byli odlišení od beka.
7. Hrací doba
Dospělí a dorost 2×30 minut, žactvo 2×25 minut. Pauza mezi prvním a druhým poločasem je 10 minut. Každé družstvo má právo v každém poločase na oddechový čas v délce trvání max. 1 minutu. Oddechový čas (time) se nadstavuje časovému limitu zápasu. Čas se zpravidla nezastavuje, takže při vyčerpání 1 "tajmu" za poločas, končí poločas v 31. minutě. Čerpání oddechového času na rozhodčím může pouze v přerušené hře požadovat kapitán, vedoucí, trenér nebo hráč zastupující na hřišti kapitána.
8. Rozsah pohybu hráčů
Brankář a obránce se mohou pohybovat a hrát ve vlastní obranné třetině včetně brankoviště a ve střední třetině. Záložníci se mohou pohybovat a hrát ve vlastní obranné třetině mimo brankoviště a ve střední třetině. Útočníci se mohou pohybovat a hrát ve střední třetině a útočné třetině (=obranné třetině soupeře) včetně brankoviště, nesmí ale z brankoviště střílet na branku.
9. Postavení mimo hru
Jakmile přejde míč ze střední do útočné třetiny (obranné třetiny soupeře), musí bek i záložníci útočícího družstva co nejrychleji opustit vlastní obrannou polovinu a přesunout se do útočné poloviny. To za předpokladu, že se na jejich obranné polovině nezdržuje žádný soupeřův hráč. Do vlastní obranné poloviny se mohou vrátit teprve tehdy, když se míč vrátí do střední třetiny nebo do jejich obranné poloviny přejde soupeřův hráč (toto neplatí v případě tzv. vybíhání, to znamená že se soupeřící hráč nachází v naší obranné polovině a bezprostředně před přesunutí míče do střední třetiny vyběhne do útočné poloviny a obránce zůstane ve své obranné třetině).
Nedodrží-li jakýkoliv obránce toto ustanovení, dostává se do postavení mimo hru a proti jeho družstvu se nařizuje trestný hod. Trestný hod se v tomto případě provádí obránce nebo záložník z útočícího (zvýhodněného) družstva. Stojí při tom na středu hřiště. Hráč, který se provinil nebo rozhodčím označený záložník (v případě provinění obou záložníků; pokud se proviní i bek musí jít vždy on) musí zůstat na středové čáře do písknutí rozhodčího. Zbylí hráči útočícího družstva mohou bránit návratu záložníka (vytvořit stěnu). Na totéž písknutí rozhodčího přihrává zvýhodněný hráč provádějící hod svým útočníkům, kteří čekají na přihrávku v útočné třetině. Při rychlé a přesné rozehrávce jsou tak útočníci v početní výhodě. A to po dobu, než stihne přiběhnout člen soupeřovy obrany, který byl postaven mimo hru.
10. Provádění hodů
-Kromě hodu ze zamezí (autu) a hodu od branky
Každý hod musí být proveden do 2 sekund po písknutí rozhodčího. Rozhodčí je povinen umožnit rychlé střídání brankářů před provedením pokutového i trestného hodu. Všechny hody se provádějí z místa. Při provádění hodu musí hráč stát na jedné nebo na obou nohou. Od písknutí rozhodčího k hodu do doby jeho provedení se nesmí hráč s míčem rozběhnout, pokročit, vykročit, ukročit kterýmkoliv směrem. Před provedením hodu musejí být spoluhráči i hráči soupeře vzdáleni od hráče, který hod provádí, nejméně 4 m.
11. Vhazování míče ze zámezí
Zahraje-li hráč míč za pomezní čáru (aut), vhazuje do hry míč hráč soupeře. Hází z místa, kde míč přešel do autu. Rozhodčí oznámí písknutím, že k autu došlo, výhoz už píšťalkou nepobízí, hráč hází hned.
12. Hod od branky
Brankář provádí hod:
- zahraje-li hráč míč za soupeřovu brankovou čáru (mimo branku),
- vyrazí-li brankář při střelbě na branku míč v brankovišti za vlastní branku (nikoliv však až po odrazu od tyče).
Ani jeden z těchto hodů není určován písknutím rozhodčího. Rozhodčí ale může písknutím vyzvat k hodu, pokud nazná, že brankář výhoz zdržuje, po takové pobídce musí brankář už okamžitě hod uskutečnit. Stejné pravidlo se používá u průběhu hodu z autu.
13. Hod z rohu
Zahraje-li hráč (mimo brankáře při brankářském zákroku) míč za vlastní brankovou čáru (mimo branku), vhazuje míč do hry útočník soupeře. Jeden záložník bránícího týmu se přesouvá mimo obranné pásmo - čili musí stát za třetinovou čárou. Vrací se zpět do své třetiny na písknutí rozhodčího, na které zároveň útočník z rohu přihrává svým spoluhráčům.
14. Hra brankáře
Brankář smí v brankovišti míč nohou zarazit, odrazit, vykopnout, ale pouze, když brání ve střelbě na branku. Použije-li brankář těchto výhod úmyslně, včetně odkopnutí při každém jiném zákroku uvnitř brankoviště, nařídí rozhodčí pokutový hod.
15. Hra s míčem
Hráč smí držet míč (i ležící na zemi) nebo se s ním pohybovat nejdéle 2 sekundy. Míč může následně vyhodit nad hlavu nebo jej odrazit od země a opět chytit a držet další 2 sekundy. To ale může udělat nejvýše dvakrát. Čili má dohromady maximálně 6 s na držení míče. Není dovoleno jakýmkoliv způsobem vyrážet míč soupeři z ruky. Není dovoleno kopání do míče nebo zarážení míče nohou, tj. částí nohy od kolena dolů, koleno v to počítaje. Je zakázáno házet úmyslně míč soupeři na nohy.
16. Střelba na branku
Na branku se smí střílet při nepřerušené hře, dále z hodu z rohu, z trestného a pokutového hodu. Hráč smí hodit míč jednou nebo oběma rukama, nebo srazit míč do branky rukou (rukama) nebo jinou částí těla, kromě nohou, a to z prostoru mimo soupeřovo brankoviště. Pro posuzování správnosti střelby na branku rozhoduje vždy postavení nohou. Při střelbě s výskokem nesmí hráč po provedení hodu dopadnout dovnitř brankoviště.
17. Dosažení branky
Branky je dosaženo, projde-li míč po zemi nebo ve vzduchu celým svým objemem přes brankovou čáru mezi brankovými tyčemi a brankovým břevnem (tzn. ocitne-li se celý míč v bráně) a útočící družstvo neporušilo žádné ustanovení pravidel.
18. Volný hod
Z volného hodu nemůže být přímo dosaženo branky, ani vlastní. Dostane-li se míč přímo z volného hodu do soupeřovy branky, nařídí rozhodčí hod od branky. Dostane-li se míč přímo do vlastní branky, nařídí rozhodčí hod z rohu.
19. Trestný hod
Z trestného hodu může být přímo dosaženo branky, třeba i vlastní. Při provádění trestného hodu v útočné třetině musí zbylí útočníci zaujmout postavení mimo brankoviště. Do brankoviště mohou vstoupit po písknutí rozhodčího k provedení hodu. Všichni hráči musí být minimálně 4 m od útočníka provádějícího trestný hod. Jelikož to pravidla umožňují, při trestném hodu si naprostou většinou obránce (bek) stoupá do branky vedle brankáře, aby mu pomohl zabránit gólu. Ihned po provedení trestného hodu útočníkem (střelbou nebo rozehrou), se bek vrací ke svému běžnému postavení.
20. Pokutový hod
Pokutový hod (neboli šestka) se provádí z kteréhokoliv místa na myšlené spojnici středu branky se středem hřiště, nejdále 4 m od brankoviště. Z pokutového hodu může být přímo dosaženo branky. Hráč může pohnout nohou při střelbě do brány. Tzn. útočník střílí ze středu brankoviště na bránu, kterou brání pouze brankář. Útočník se na střelbu může až 4 m rozběhnout. Všichni ostatní hráči musí být po vykonávání hodu od branky dále než střílející útočník, avšak jsou připraveni chytat případný odražený míč. Pokutový hod se nařizuje při tvrdších a nebezpečnějších obranných zákrocích např. bránění zezadu, za krk, chycení ruky při střelbě apod.
21. Hod rozhodčího
Hodem rozhodčího se pokračuje ve hře v případech sporných nebo dopustí-li se oba soupeři současně stejného porušení pravidel.
Historie
Vznik
V druhé polovině 19. století a počátku 20. století se, zejména mezi studenty, začaly těšit oblibě různé sportovní hry. Studenti často nenalézali u svých profesorů pochopení, všeobecně se uchytil názor, že sport odvádí mládež od studia. Vše změnil výnos rakouského ministerstva školství z roku 1890, ve kterém bylo školám nařízeno věnovat se ve výuce také tělovýchově. Největší oblibě se těšila kopaná, nicméně profesoři ji příliš nepodporovali a snažili se uvést v život různé hry. Není tedy divu, že u kolébky národní házené, jejíž název se několikrát měnil, stáli tři učitelé tělocviku.
První, Václav Karas, profesor na reálce na Smíchově v Praze, ji nazval Vrhaná s přenášením a popsal ji v červnu 1905 v tehdejším brněnském odborném časopisu Výchova tělesná. Hřiště bylo křížem rozděleno na čtyři čtvrtiny a hráči, kterých bylo devět, nesměli ze svých čtvrtin vycházet. Každé družstvo mělo dvě trojice útočníků, dva pomezní obránce a brankáře. Střílelo se do zmenšených branek na kopanou.
Druhým, kdo do vývoje naší hry zasáhl, byl Josef Klenka, neúnavný propagátor her mládeže, náčelník ČOS a později inspektor tělocviku na středních školách. Místo fotbalových branek zavedl terče, tj. kruhy o průměru 1 m upevněné na tyči 1,5 m od země. Byly polepeny pomalovaným papírem jako šachovnice. Po každém gólu, tj. protržení, se kruh znovu polepoval, později se kruhy vyměňovaly. Hřiště bylo 25 m – 30 m široké a 50 m dlouhé. Družstva byla šestičlenná a míč se mohl „honit rukama“, což byl výraz pro driblink. Hra se začala nazývat cílová. Klenka hrál hru i před obecenstvem na V. všesokolském sletu v Praze v roce 1907, kde s ní vystoupil „kroužek pánů a slečen“, který byl tehdy jakýmsi společensko-sportovním klubem v Praze.
Konečnou úpravu pravidel házené provedl třetí učitel tělocviku, domažlický rodák Antonín Krištof. Byl prvním organizátorem tělovýchovy na České vysoké škole technické v Praze. Novou hru, kterou upravil podle vzoru Karase a Klenky, nazýval nejprve Klenka cílová, ale vrátil se k brankám a hru nazval Házená. Hřiště mělo obdélníkový tvar o rozměrech 25×45 m a bylo rozděleno na třetiny. Branky byly 2 m široké a 2,50 m vysoké, brankoviště obdélníkové o rozměrech 4×6 m a cizí hráč do něj nesměl vstoupit. Družstva byla sedmičlenná, jinak se mohl počet měnit velikostí hřiště. Dokonce hrávali ve smíšených devítičlenných družstvech čtyři muži, zbytek ženy, tři útočníci, záložník a brankář, ostatní jako náhradníci. Útočníci se mohli pohybovat jen v poli středním a nepřátelském, náhradníci jen v poli středním a vlastním, záložník a brankář jen v poli vlastním a oni jediní mohli hrát v brankovišti. S míčem se nesmělo udělat více než tři kroky, byla zakázána hra pěstí.
Zatímco cílová byla spíše společenskou záležitostí, ženy ji hrály v dlouhých sukních a muži ve svátečních kalhotách, úpravou pravidel dal Krištof házené charakter sportovní hry. Položil také první organizační základy hry ustavením prvého ústředí házené, Svazové komise kroužků házená v Praze. Roku 1907 Krištof založil první házenkářský klub, dívčí Kroužek házené Praha. V roce 1909 byla jeho zásluhou vydána tiskem prvá pravidla. Házená se šířila i v jiných místech v Čechách a na Moravě. V roce 1911 ji Český olympijský výbor zařadil do svých sportovních slavností, které se konaly na Letné a o rok později byla zařazena i do programu VI. všesokolského sletu.
Mezi první české kluby patří také Kroužek házené Vinohrady, KH Karlín a KH Smíchov.
Házená se dokonce rozšířila i do Ruska a Jugoslávie, kam ji zanesli vysokoškoláci, kteří studovali v Praze a tam házenou poznali. V Jugoslávii (v Chorvatsku[1][2]) se házená velmi rychle rozšířila, nabyla velké obliby a Jugoslávie byla také jedinou zemí, kde se česká házená udržela mezi dvěma světovými válkami.
Do Ruska házenou přinesli čeští učitelé tělocviku, které tam na střední školy povolala carská vláda. V roce 1912 jich bylo 130 a všichni hrávali házenou. První soutěže se hrály v Charkově v roce 1915 za účasti 14 družstev. Ale I. světová válka, VŘSR a intervence proti mladému sovětskému státu informace o házené přerušily.
Národní házená po první světové válce
Po vypuknutí první světové války se téměř veškerá sportovní, a tedy také házenkářská, činnost přerušila. Po válce se u nás házená šířila zásluhou nadšeného pracovníka Jaroslava Trantiny, který po další úpravě pravidel usiluje o ustavení svazu házené. V roce 1920, kdy byla v činnosti již 167 klubů s 2 520 hráči a hráčkami, se házená sdružuje do Československého svazu házené a ženských sportů. Házená se tehdy hrála v sedmičkách, devítkách a také v devítkách smíšených (pět mužů, čtyři ženy). Československý svaz házené a ženských sportů v roce 1921 spolu s Francií, Amerikou, Anglií, Itálií, Švýcarskem a Švédskem založil v Paříži Mezinárodní federaci ženských sportů, která uznala českou házenou jako mezinárodní hru a přebrala česká pravidla jako oficiální. Byl to pozoruhodný úspěch naší původní československé míčové hry. Házená se v těchto letech začala šířit také na Slovensku a v Jugoslávii (40 klubů v roce 1923, mistrem byl tehdy chorvatsky klub HAŠK Záhřeb). Ve dvacátých letech se také začala organizovat národní házená v Rumunsku, kde 8 klubů založilo svůj svaz; hráli ji také naši krajané v USA. Došlo k prvním mezinárodním a mezistátním utkáním, poprvé hrály československé reprezentantky roku 1923 v Praze proti Francii, kde zvítězily 9:2; roku 1924 se sehrála kombinovaná družstva Češek a čtyř Belgičanek propagační zápas v Bruselu, roku 1926 se ČSR utkala se Švédskem. Házená se také hrála v Rakousku zásluhou týmu Slovan Vídeň. Postupem času se u nás házená stala oblíbeným sportem i mužů zásluhou DTJ a Sokola.
Také mezinárodní styky se slibně rozvíjely a roku 1930 se dokonce pořádala první mistrovství světa v házené žen, v němž vyhrály naše reprezentantky před Jugoslávií a Polskem. Druhé mistrovství světa se hrálo v roce 1934 v Londýně, kde Československo prohrálo s Jugoslávií 4:6.[3][4][5] (chorvatský klub HŠK Concordia Záhřeb[1]. Jedná se o historicky první zápasy v národní házené na území Velké Británie. Toto byl také poslední samostatný podnik Mezinárodní federace ženských sportů, která se tichou cestou rozešla a sporty žen se začaly organizovat společně se sporty mužů. Byl založen Mezinárodní svaz míčových her, kde získaly převahu košíková a handball. V českých zemích ubylo přechodně sportovních klubů házené.
Roku 1935 vyšla v Lidových novinách zpráva o tom, že téhož roku proběhl v lázních Scarborough v Anglii několikadenní kurz profesorů a učitelů tělocviku, kde si poprvé angličtí hráči (asi 20 mužů a 50 žen) během šesti tréninků vyzkoušeli „game of hazena“. Podle zprávy měly nadále probíhat tréninky v Londýně. Během tehdejšího podzimu plánovala Associace pro net-ball a ostatní míčové hry vytisknout a vydat pravidla národní házené, přeložená do angličtiny. Prvním klubem, který měl hru nadále v Anglii propagovat, byl londýnský Civil Service Club.
Roku 1936 došlo ke změně pravidel, z nichž nejzávažnější byla změna brankoviště podle jugoslávského vzoru na půlkruhové o poloměru 6 m a hra se stala zajímavější. Tím se zlepšila i činnost Svazu házené a přechodný úbytek družstev byl opět vyrovnán zvýšenou pozorností družstvům mládeže. Koncem roku 1938 byl přijat název Československý svaz házené, který měl 5 žup. Avšak v roce 1939 zřízením Protektorátu Čechy a Morava byla nucena tato organizace změnit název na Český svaz házené. V té době nastal na území Protektorátu největší rozmach národní házené. V roce 1944 byla vytvořena národní liga házené za účasti 6 družstev mužů z Čech a stejného počtu z Moravy. Ženy hrály ligu ve dvou skupinách a muži měli ještě 4 skupiny divize. Zájem o házenou byl velký. Ve svazu bylo registrováno 22 156 hráčů hráček ze třinácti žup a 3728 z odborů DTJ.
Profesionalizace
V listopadu 1944 vyšla nová pravidla házené, která měla tyto podstatné změny: byly stanoveny trojí rozměry hřiště: 45×30 m, 51×34 m, 48×32 m. Byla zavedena změna v rozdělení třetin, takže střední třetina byla pohyblivou podle velikosti hřiště (15, 18, 21 m). Bylo upraveno provádění všech hodů, hlavně trestného. V pravidlech byly zveřejněny vysvětlivky tak, aby rozhodování bylo pokud možno jednoznačné.
Rozmach házené za Protektorátu měl i stinnou stránku, a to izolaci v mezinárodním styku. Tato izolace se ještě prohloubila v roce 1947 kongresem IHF, který připravil podmínky k dalšímu rozvoji házené podle mezinárodních pravidel bez přihlédnutí k československé házené. Proto se v Československu objevili propagátoři mezinárodní házené, až nakonec došlo v roce 1952 k ustavení dvou samostatných sekcí při SVTVS pro házenou a českou házenou.
V roce 1949 došlo k další úpravě pravidel, kterou se podařilo vyřešit otázku statické obrany. Bylo zavedeno pravidlo, že záložníci musí opustit vlastní obrannou polovinu hřiště, jakmile míč přešel z pole středního do pole útočného, Bylo zavedeno střídání hráčů, držení míče tři sekundy a driblování míčem jen třemi úkony za sebou. Hra se velmi zkvalitňovala díky odbornému nácviku, příručkám, článkům v odborných časopisech, kursům a soustředěním hráčů a činovníků. Házená dostávala odborný a vědecký základ. V roce 1952 došlo k další změně pravidel. Driblování s míčem bylo dovoleno jen se dvěma úkony (nadhoz nebo úder o zem), třetím již musela být přihrávka.
Největší zájem SVTVS se soustřeďoval na mládež, která hrála četné turnaje dorostu a žactva.
V roce 1952 v soutěžím SHM hrálo 1618 družstev s 16 000 mladými hráči a hráčkami. Zájem mládeže o českou házenou potvrzovaly přebornické soutěže dorostu i žactva s vysokou hráčskou dovedností.
Největšího rozvoje dosáhla česká házená v roce 1954, kdy sekce české házené při SVTVS organizovala 447 oddílů a v nich 26 125 hráčů.
Ustavením dvou sekcí pro házenou a českou házenou česká házená velmi utrpěla a její snahy o rozšíření na Slovensko neměly trvalého výsledku. Ani návrh trenérské rady sekce házené zavedením nadhozu v mezinárodní házené v roce 1956 neuspěl; technická komise IHF tento návrh nepřijala.
Vrcholnými zápasy v národní házené byla mezizemská utkání Čechy – Morava. První utkání žen Čechy – Morava s výsledkem 1:5 se hrálo 30. června 1922 v Prostějově. Muži hráli první nezázemské utkání 24. května 1942 v Praze s výsledkem 13:6 ve prospěch Čech. Za druhé světové války získala tato utkání popularitu i tradici a dodnes jsou házenkářských svátkem.
Soutěže družstev se hrály do druhé světové války vylučovacím způsobem, pak jako zemská mistrovství s finále o přeborníka republiky. V roce 1941 se začaly hrát ligové soutěže mužů i žen a od té doby se hrají dodnes. Každoročně jsou vyhlašováni přeborníci ČR ve všech věkových kategoriích. Na nižší úrovni se hraji krajské přebory, dále jsou to II. liga a I. liga.
V roce 1967 z podnětu ústřední trenérské rady připravila ústřední sekce české házené o prvním červencovém týdnu v Červeném Kostelci první soustředění juniorů a juniorek za účasti 32 chlapců a 15 děvčat. Toto soustředěni je od té doby pořádáno každoročně s velkým zájmem účastníků. Účastníci těchto soustředění uplatňují znalosti ve svých oddílech.
Filmy
- Národní házená – Skupina přátel, která v devadesátých letech vyhrála mistrovský titul v národní házené, dostane po letech pozvánku na první klubové mistrovství veteránů v národní házené na Slovensku. Pod heslem „Míč v ruce, národka v srdci“ tak borci musí zapomenout na pohodlí a začít poctivý trénink.[6]
Odkazy
Reference
- ↑ a b Povijest ŠHK Concordia Archivováno 28. 9. 2013 na Wayback Machine.
". Sve športske sekcije kluba su bile izrazito uspješne, ali ipak najveće postignuće kluba datira iz 1934. godine kada hazenašice (hazena – preteča rukometa) Concordije u Londonu postaju svjetske prvakinje." - ↑ Svjetske prvakinje 1934. Archivováno 29. 10. 2013 na Wayback Machine., autor Milka Babović
- ↑ ŠHK Concordia Archivováno 28. 9. 2013 na Wayback Machine. Hazenašice - prvakinje svijeta 1934. Na 4. svjetskim ženskim igrama u Londonu.
- ↑ Historie národní házené Reprezentační družstvo Jugoslávie v roce 1934.
- ↑ ŠHK Concordia Zagreb[nedostupný zdroj] Hazenašice - prvakinje svijeta 1934.
- ↑ Komediální seriál Národní házená
Související články
Externí odkazy
Obrázky, zvuky či videa k tématu národní házená na Wikimedia Commons - Historie NH
- Ukázka z knihy „Dějiny házené“ od Metoděje Zajíce, vydané roku 1948
- Ukázka z časopisu Česká házená, který vycházel v 60. letech