Kolovratský palác (Praha, Nerudova)
| Kolovratský palác v Nerudově ulici v Praze | |
|---|---|
![]() Kolovratský palác v Nerudově ulici v Praze | |
| Účel stavby | |
| Základní informace | |
| Sloh | Vrcholné baroko |
| Architekt | Jan Blažej Santini |
| Výstavba | 1716–1721 |
| Stavebník | Páni z Hradce |
| Další majitelé | Slavatové Kolovratové Thunové |
| Současný majitel | Italský stát |
| Poloha | |
| Adresa | Nerudova 214/20 Praha 1, Malá Strana 118 00 Praha 011, |
| Ulice | Nerudova |
| Souřadnice | 50°5′19,32″ s. š., 14°24′1,44″ v. d. |
| Další informace | |
| Rejstříkové číslo památky | 39206/1-666 (Pk•MIS•Sez•Obr•WD) |
| Některá data mohou pocházet z datové položky. | |
Kolovratský palác (uváděn i v archaické podobě Kolowratský, později zvaný též Thunovský či Thun-Hohenštejnský) je vrcholně barokní stavba v Praze na Malé Straně, s průčelím do ulice Nerudova (číslo 214/20), vybudovaná v letech 1716–1721. Palác je částí palácového komplexu, jehož druhou část tvoří renesanční budova paláce pánů z Hradce, později zvaného též Slavatovský (Thunovská 193/25, Zámecké schody 193/1). Oba paláce jsou chráněny jako kulturní památky.[1][2]
Palác pánů z Hradce, vybudovaný na místě několika měšťanských domů, získal roku 1558 Jáchym z Hradce. Roku 1602 jej koupil Vilém Slavata z Chlumu a Košumberka. Po vymření Slavatů roku 1693 palác získal roku 1701 Norbert Leopold Libštejnský z Kolovrat. Roku 1769 pak dědictvím přešel do majetku Thunů, kterým patřil až do roku 1924, kdy jej spolu s Kolovratským palácem koupila italská vláda pro své velvyslanectví, jež zde sídlí dodnes.
Celý palácový areál je významnou stavební památkou. Bývalý palác pánů z Hradce patří k významným renesančním pražským stavbám. Pozoruhodné jsou i raně barokní úpravy paláce z dob Slavatů, především vybudování vyhlídkové věže s unikátně použitým architektonickým tvaroslovím. Nejvýznamnější částí komplexu je však jeho jižní část, vrcholně barokní stavba vybudovaná za Kolovratů podle projektu barokního architekta Jana Blažeje Santiniho a patřící k jeho nevýznamnějším palácovým stavbám. Na sochařské výzdobě hlavního portálu se též podílel Matyáš Bernard Braun. Interiéry paláce byly podstatně upravovány v 19. století.
Umístění


Palácový komplex se nachází na rozsáhlé, ne zcela pravidelné parcele, ležící mezi souběžnými ulicemi Nerudova a Zámecké schody na Malé Straně v Praze. Na západní straně k němu přiléhá bývalý klášter theatinů s kostelem Panny Marie Ustavičné Pomoci, na východě sousedí se zástavbou měšťanských domů. Obě části mají odlišný stavební vývoj a také vlastní čísla popisná. Starší, severní, převážně renesanční část (čp. 193) se hlavním průčelím obrací do strmé ulice Zámecké schody, mladší, jižní část je barokní (čp. 214) a je hlavním průčelím orientována do Nerudovy ulice. Výškový rozdíl zmíněných ulic způsobuje také citelný výškový rozdíl obou částí, který činí prakticky dvě podlaží. Druhé patro barokní části při Nerudově ulici se nalézá v úrovni přízemí starší části při Zámeckých schodech.
Historie

Ve středověku byla parcela nynějšího paláce zastavěna řadou měšťanských domů. Minimálně tři rozlehlé domy stály při Zámeckých schodech, další skupina domů stála při Nerudově (dříve Ostruhové) ulici.
V roce 1407 jsou na místě budoucího paláce pánů z Hradce doloženy dva měšťanské domy, které byly následně za husitských bouří vypáleny. Oba domy se postupně dostaly do šlechtických rukou (západní koupil roku 1530 Zdeněk Lev z Rožmitálu). Po velkém požáru Malé Strany roku 1541 oba domy vyhořely a při následné obnově byly spojeny a přestavěny místokancléřem Českého království Jiřím Žabkou z Limberku.[3]
Parcely při nynější Nerudově ulici byly zastavěny již ve 13. století, avšak po této zástavbě se nedochovaly žádné zbytky, a to ani v podobě archeologicky zkoumatelných reliktů, neboť před výstavbou paláce zde došlo k radikálnímu snížení terénu.[4]
Páni z Hradce
Jáchym z Hradce koupil výše zmíněný palác od Jiřího Žabky z Limberku roku 1558. V rámci obnovy po lokálním požáru roku 1561 došlo k jeho nesmírně nákladné přestavbě. Jenom mezi lety 1563–1565 zde bylo prostavěno 1 500 kop grošů, což tehdy představovalo cenu zhruba tří měšťanských domů. Této přestavby se snad zúčastnil stavitel Antonio Ericer. Další zprávy o stavební aktivitě a rozšiřování paláce směrem na východ (po tomto rozšíření palác zaujímal plochu tří domů) pocházejí z roku 1580, kdy zde zřejmě pracoval Ulrico Aostalli de Sala. V následujících letech práce pokračovaly v interiérech, roku 1595 však palác znovu vyhořel, ale byl opět záhy obnoven.[3]
Slavatové
Roku 1602 získal palác za 3 000 kop grošů Vilém Slavata z Chlumu. Poměrně nízká cena napovídá, že Slavata, který se téhož roku stal zetěm Adama z Hradce, dostal palác zčásti jako svatební dar.[3] Poté následovala nová stavební aktivita a po roce 1620 také soustavné vykupování přiléhajících domů v Ostruhové (Nerudově) ulici směřující k dalšímu plánovanému rozšíření paláce. Roku 1688 zde držel Jan Jáchym Slavata celkem pět domů, které byly po roce 1689 strženy.[5]

Roku 1674 je na stavbě doložen Giovanni Domenico Orsi. Roku 1689 se Slavata zavázal dobudovat svůj palác, ale z rozsáhlého projektu byla realizována pouze pozoruhodná raně barokní vyhlídková věž, patrně Giovannim Battistou Madernou. Roku 1693 Slavatové vymřeli, což další práce na rozšíření paláce zastavilo.[3]
Kolovratové
Nové přípravy výstavby barokní části paláce začaly poté, co slavatovské dědictví získal Norbert Leopold Libštejnský z Kolovrat, který roku 1701 požádal významného italského, v té době ve Vídni a také na Moravě (Slavkov u Brna) působícího architekta Domenica Martinelliho o projekt paláce. Martinelli návrh vypracoval zřejmě již roku 1702.[5]
Podle dochovaného půdorysu mělo být hlavní průčelí do Ostruhové ulice řešeno jako trojdílné, ve střední části ustouplé, ale konvexně vypjaté tak, že se vrcholem segmentu dotýkalo uliční čáry. Za tímto průčelím měl být umístěný rozlehlý vstupní vestibul s dvojicí reprezentativních schodišť po stranách. Tento monumentální plán však nebyl realizován, velmi pravděpodobně proto, že byl velmi nákladný.[6] Předpokládal také demolici celého renesančního Slavatovského paláce a navíc i částečně zasahoval na obecní pozemek na Zámeckých schodech. Představoval však skvělý výkon v nejryzejší tradici římského baroka druhé poloviny 17. století.[5]
V roce 1706 je poprvé zmíněn projekt od Jana Santiniho, jednoho z nejvýznamnějších českých barokních architektů. Až do roku 1716, kdy hrabě Kolovrat zemřel, se však nezačalo stavět. Palác podle Santiniho projektu vybudoval až mladší syn Norbert Vincenc Libštejnský z Kolovrat (1696–1727). Je přitom možné, že Santini svůj více než deset let starý projekt upravil. Stavbu paláce prováděli dle tohoto projektu Giovanni Antonio Lurago a Bartolomeo Scotti.[5] Hrubá stavba byla dokončena roku 1721. V následujících letech byly ještě dokončovány interiéry.[7]
Thunové
Palác přešel dědictvím od roku 1769 do majetku Thunů. Interiéry byly několikrát stavebně upravovány, nejvýrazněji asi v letech 1869–1871 podle projektu Josefa Zítka za účasti malířů a sochařů Josefa Tulky, Františka Ženíška, Antonína Levého, Josefa Scheiwla a Josefa Trenkwalda. Tehdy došlo k pozměnění dispozice, mnohé originální truhlářské prvky byly vyměněny za neorenesanční atp.[4]
Italské velvyslanectví
Roku 1924 oba stavebně i funkčně propojené paláce od Jaroslava Františka Thuna koupila italská vláda a zřídila zde své velvyslanectví v Republice československé. Italské velvyslanectví v paláci sídlí dosud.[8]
Popis
Stavba na rozlehlé nepravidelné parcele je situovaná ve dvou výškových úrovních, jejichž rozdíl tvoří výšku dvou podlaží. Přízemí bývalého paláce pánů z Hradce je tedy v úrovni druhého patra předního, barokního Santiniho paláce. Tento rozdíl, daný nejen svažitým terénem, ale především výše popsanými historickými okolnostmi, způsobuje to, že je dodnes lze chápat jako dva, víceméně samostatné objekty.

Barokní novostavba Kolovratského paláce
Barokní novostavba je výraznou reprezentativní architekturou, dokládající Santiniho zcela neortodoxní a velmi rafinovanou práci s architektonickým tvaroslovím.[9]
Hlavní průčelí
Mohutné, tříetážové, třináctiosé, symetricky řešené hlavní průčelí, kterým palác vstupuje do prostoru strmé a poměrně těsné Nerudovy ulice, je velmi vynalézavě řešeno pomocí několika principů, které lze považovat za typické pro Santiniho tvůrčí přístup.[7]
Základní členění
Průčelí je členěno pomocí trojice tříosých rizalitů. Prostor mezi nimi „vyplňují“ dvě dvojosá „spojovací křidélka“. Rizality přitom před tato křidélka předstupují téměř neznatelně (střední rizalit o něco více než boční). Jejich zdůraznění se proto děje čistě formálními architektonickými prvky. Nejviditelnějším, ale zdaleka ne jediným, je použití segmentového, ozdobnou vázou ukončeného frontonu ve střední ose rizalitů a zdůraznění oken pomocí bohatěji utvářených suprafenester.[7]
Míra zdůraznění rizalitů však není stejná. Zatímco střední rizalit je opatřen pilastry jónskými, boční rizality mají pilastry toskánské. Střední rizalit je také jako jediný opatřen kompletním kladím a tudíž je o cca 1 m vyšší než ostatní části průčelí. Kromě toho je střední rizalit zvýrazněn také přítomností dramaticky utvářeného hlavního portálu a dalších, hmotněji a dramatičtěji formovaných prvků (opět především suprafenester).[7]
Horizontální členění průčelí
Průčelí je horizontálně členěno do tří vrstev: Spodní tvoří plasticky předstupující, hmotný sokl členěný několika vrstvami kvádrové bosáže a prolomený vynalézavě utvářenými okénky; další vrstvu (víceméně v rozsahu přízemí) pokrývá vodorovná pásová rustika; třetí vrstvu průčelí v rozsahu piana nobile a druhého patra pak pokrývá hladká omítka, vertikálně rytmizovaná plochými pilastry vysokého řádu.[7]
Tento horizontální princip je však na několika místech vědomě porušován. Sokl je pochopitelně přerušen portálem vjezdu, ovšem s ním zde vstupuje též pásování, uplatňující se v rozsahu středního rizalitu a náležející jinak druhé vrstvě. Naopak do této druhé vrstvy sestupuje ve středním i bočních rizalitech částečně hladká omítka, zatímco v úsecích mezi rizality pro změnu pásování prostupuje třetí vrstvou až ke korunní římse (vizte červené šipky na schématu fasády).[7]

Santini zde tedy používá zcela běžný princip postupného odhmotňování fasády směrem vzhůru: Od těžkého, hmotného, plasticky důrazně promodelovaného soklu, přes méně plasticky důraznou pásovou rustiku v přízemí, až po zcela hladkou omítku v prvním a druhém patře. Tuto klasickou sestavu tří na sebe položených vrstev ovšem zároveň rafinovaně porušuje a tím nejen dosahuje větší překvapivosti a dramatičnosti, ale také přispívá k zdůraznění rizalitů.
Hloubkové plány průčelí
Prakticky stejným způsobem Santini pracuje i s hloubkovými plány průčelí. Také zde používá tři jasně definované vrstvy, jejichž vzájemný vztah opět vědomě znejasňuje. Tyto prostorové plány na sebe Santini „klade“ po způsobu jakýchsi lamel.[7]
Použití trojice plánů při budování průčelí je v baroku běžné a vychází ještě z římského způsobu stavění, kdy byly řecké nosné články (sloupy nesoucí kladí) použity jako prvky čistě dekorativní, opticky členící plochu nosné stěny. Tento „dvojvrstvý“ systém byl v raném novověku obohacen ještě o „mezivrstvu“ v podobě lizénových rámů. V době kolem roku 1700 vedl tento „trojvrstvý“ systém řadu architektů k bohaté formální hře, v níž byl vztah prostorových plánů s pomocí pilastrových srostlic, vpadlých polí a v kombinaci s mělkými rizality (chápanými v podstatě jako další vrstva fasády) znejasňován a komplikován. Santiniho práce s prostorovými plány na fasádě Kolovratského paláce jde v tomto směru ještě dál, neboť vědomě potlačuje rozdíl mezi pilastrem, lisénovým ránem a základní plochou fasády. Samotný popis tohoto jevu na fasádě Kolovratského paláce je proto značně složitý. (vizte opět schéma fasády) Komplikovanost zmíněných vztahů vyjadřuje například paradoxní umístění volut jónských hlavic ve středním rizalitu.[7]
Použití hmotných článků
Dalším Santiniho typickým, i zde uplatněným tvůrčím principem je vědomé používání poměrně hmotných, nadimenzovaných architektonických prvků na fasádě, která je jinak řešena relativně jednoduše a plošně, takřka graficky. To je vidět například na orámování oken. Trojice oken přízemí bočních rizalitů je opatřena pro Santiniho typickými naddimenzovanými klenáky. Okna piana nobile jsou opatřena celkem čtyřmi variantami suprafenester s dramaticky vzepjatými nadokenními římsami umístěnými ve složitém rytmu ABA-CC-BDB-CC-ABA (vizte schéma fasády).[7]
Řešení středního rizalitu
Střední, tříosý rizalit je prolomen mohutným vznosným portálem vjezdu „střeženého“ dvojicí orlic s rozepjatými křídly z dílny Matyáše Bernarda Brauna. Orlice, které odkazují na rodový erb Kolovratů (v němž se nachází právě orlice), zde v podstatě plní roli tradičních atlantů, jak je můžeme vidět například na protilehlém paláci Morzinském.[10]
Na rozměrných vztyčených volutách rozťatého frontonu portálu je pak umístěna dvojice soch Jupitera a Junony, přisuzovaných též Braunově dílně,[11] avšak velmi pravděpodobně mladších, z doby kolem roku 1750.[12] Po stranách portálu je umístěna dvojice nižších portálků pro pěší, které jsou jakoby stlačeny bezprostředně nad portálky prolomenými mohutnými, vertikálně umístěnými okuly. Celek je v podstatě utvářen jako neklasická variace motivu serliany. Svým vyzněním je také značně expresivní a působí dojmem velikého napětí jednotlivých hmot.[7]
Okno nad portálem je výrazně větší než ostatní okna piana nobile a jako jediné je ukončeno segmentem. Suprafenestra okna je opatřena aliančním znakem Kolovratů, který je však mladším doplňkem z doby kolem roku 1750.[11]
Celkové vyznění průčelí

barokní části paláce – současný stav
Celé průčelí je pomocí popsaných postupů utvářeno nejen jako velmi reprezentativní a vznosná, ale také velmi dynamická, dramatická a paradoxně chápaná struktura. Střední osa středního rizalitu je jakoby vytlačována vzhůru, zatímco boční osy naopak opticky táhnou masu zdiva k zemi. Celek fasády je k této střední ose výrazně gradován a dramatizován útvary suprafenester piana nobile. Boční rizality pak hrají nejen roli optické protiváhy rizalitu středního, ale zároveň průčelí i opticky zpevňují. Dynamickému a dramatickému chápání průčelí také napomáhá umístění ve strmé, relativně úzké ulici, takže je prakticky vždy vnímáno v radikální perspektivní zkratce.[7]
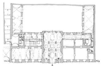
Interiér
Koncepce interiéru paláce zjevně vychází již z Martinelliho projektu. Stalo se tak téměř určitě na přání investora, ovšem toto jasné, velkorysé a monumentální řešení bylo nepochybně blízké i Janu Santinimu.[9]
Vzhledem k výrazným mladším úpravám se z této koncepce do současné doby dochovalo pouze torzo. Spočívala v užití rozsáhlého, trojlodního vstupního průjezdného vestibulu, z něhož je dodnes přístupné obdélné, příčně situované nádvoří a dvojicemi souměrně umístěných monumentálních schodišť. Byly přístupny též prostory prvního patra, skládající se z čtvercového, dvě patra prostupujícího sálu v přední části středního rizalitu a řady salonů ležících též při uličním průčelí. Samotný sál byl přístupný prostřednictvím obdélné galerie, která vyplňovala prostor mezi oběma schodišti při dvorním průčelí.[9]
V současné podobě je sál přepatrován a zmenšen, jedno barokní schodiště bylo nahrazeno menším, podkovovitým, a dispozice byla doplněna řadou utilitárních příček. V původní podobě se dochoval pouze vstupní vestibul v přízemí. Ten je řešen jako v hloubkovém i příčném směru důrazně rytmizovaný prostor vymezený stěnami pročleněnými křivkově utvářenými nikami a zaklenutý pomocí plackových kleneb. Jednotlivá travé klenby jsou členěna pasy, v podélném směru zdvojenými, a na kápích zdobena pro Santiniho typickými štukovými, bohatě zalamovanými rámci. Volná pole jsou nesena čtyřmi páry toskánských sloupů. Dvojice středních nik je pak zdobena mytologickými sochami ze sochařského ateliéru Antonína Brauna.[13]
Dvorní fasáda paláce je poměrně prostá, přestože vychází z členění uličního průčelí. Bohatší architektonické členění má pouze protilehlá stěna původního paláce pánů z Hradce, které však v současné podobě pochází až z 19. století.[11] Před touto stěnou a částečně v nice v této stěně prolomené, je umístěna barokizující kašna osazená zmenšenou kopií Venuše Mélské, pravděpodobně též z 19. století.[14] S bývalým palácem pánů z Hradce je barokní novostavba spojena dvojicí poměrně úzkých křidélek uzavírajících kratší strany příčně obdélného nádvoří.[11]
Po levé straně hlavního průčelí je pak palác spojen s vedlejším kostelem theatinů (Kostel Panny Marie Matky ustavičné pomoci) pomocí kryté, podklenuté chodby, neboť zde byla zřízena oratoř Kolovratů.[11]

bývalého paláce pánů z Hradce
Bývalý palác pánů z Hradce
Exteriér
Převážně renesanční konstrukce bývalého paláce pánů z Hradce se nachází na značně nepravidelné, protáhlé, zhruba lichoběžné parcele kolem dvojice dvorů. Do strmé ulice Zámecké schody, k níž bývalý palác pánů z Hradce přiléhá svou delší stranou a která je skutečně zčásti tvořena kamennými stupni tzv. Nových zámeckých schodů, se palác obrací výstavným renesančním průčelím opatřeným sgrafitovou rustikou, renesančními okny s kamennými tesanými ostěními, zčásti podvojnými a bohatě utvářenými renesančními štíty zdobenými řadou čučků. Průčelí je děleno do tří částí, které se liší především podobou štítů. Zatímco levá část je zdobena renesanční atikou završenou trojicí drobných štítových nástavců, střední část je opatřena jediným rozměrným štítem. Pravá část průčelí pak vrcholí trojicí izolovaně umístěných štítů zdobených bohatě utvářeným ornamentálním sgrafitem. Střední část průčelí včetně krytého mostku, který zde překračuje uličku směřující ke kostelu Panny Marie Ustavičné pomoci a bývalému klášteru Theatinů, je dílem raně barokní přestavby, jak dosvědčuje mj. slavatovský erb umístěný nad portálkem mostku z roku 1678. Raně barokní jsou též šambrány oken střední části.[15]

vyhlídková věž paláce
Na průčelí je též dodatečně osazená pamětní deska malíře Alfonse Muchy oznamující, že zde dotyčný v letech 1911–1924 žil. Další dvě mramorové desky, osazené dnes na štítu střední části, měly původně jiné umístění. Jedna obsahuje erby pánů z Hradce a rodu Ursini, druhá erb Viléma Slavaty a jeho ženy Lucie Otýlie z Hradce.[16]
Zajímavé neobarokní průčelí obrácené do nádvoří Santiniho novostavby pochází, s výjimkou již zmíněné raně barokní vyhlídkové věže, z let 1846–47, kdy bylo upraveno podle plánu Jana Bělského. Toto v podstatě pětipodlažní průčelí je rozděleno ve výši druhého patra (které však odpovídá přízemí paláce pánů z Hradce) pavlačí na dvě části. Spodní člení slepá arkáda, horní pilastry vysokého řádu s korintskými hlavicemi a plně vyvinutým kladím, pročleněným pomoci vztyčených volutových konzolek. Také okna třetího a čtvrtého patra jsou rámována kvazibarokně, pomocí podokenních říms a trojúhelných frontonů bez šambrán.[16]
Již zmíněná raně barokní vyhlídková věž se tyčí zhruba v ose spodního nádvoří paláce. Vyrůstá z jeho střechy, ovšem neobarokní tvarosloví fasády na její existenci v hmotě stavby též reaguje, a to pomocí předstupujícího omítkového pole se slepým obloukem ve druhém a pilastrovými srostlicemi ve třetím a čtvrtém patře. Sama vyhlídková věž je opatřena poměrně vysokým soklem, na který nasedá při nároží dvojice pilastrů nesoucí kompletní kladí, které je však prostupováno na všech stranách rozměrným oknem, rámovaným po způsobu edikuly. Nadokenní římsa je přitom zcela netypicky prohnuta směrem do středu, a to jak horizontálně, tak vůči rovině fasády, jakoby stažena předstupujícím klenákem.[16]
Interiér
Interiéry staré části Kolovratského paláce jsou od Santiniho novostavby užívány spíše jako pomocné, hospodářské prostory. Jejich výzdoba tomu odpovídá. Až v klasicismu byly dodatečně vytvořeny stáje přiléhající k velikému nádvoří barokní novostavby. Nad ním se nachází původní sklepy paláce pánů z Hradce. Řada místností v přízemí (z hlediska barokní části paláce v úrovni druhého patra) je zaklenuta renesančními klenbami s výraznými hřebínky. V prvním patře jsou zřejmě v mnoha místnostech později zakryté renesanční malované trámové stropy. V několika místnostech se však na stropech dochovala také bohatá raně barokní štuková výzdoba.[16]
Význam paláce

Palác pánů z Hradce patří k významným pražským renesančním stavbám.[17] Zajímavá je také jeho raně barokní přestavba, především vyhlídková věž, která svým tvaroslovím prozrazuje účast architekta obeznámeného s dílem Francesca Borrominiho, jímž byl patrně Giovanni Battista Maderna.[18]
Nejvýznamnější částí palácového komplexu je však barokní budova při Nerudově ulici, která patří k nejvýznamnějším barokním palácovým stavbám v Čechách,[9] a to přesto, že je interiér výrazně poškozen mladšími úpravami. Jedná se také o jednu z mála kompletních barokních novostaveb, neboť v té době ještě nebylo běžné prakticky kompletně demolovat starší zástavbu, ale naopak bývalo starší zdivo zcela běžné v maximální možné míře využíváno.[7]
Také v díle Jana Santiniho patří palác k významným stavbám. Architekt v něm velmi výrazně, například utvářením vstupního vestibulu nebo tvarem suprafenester, navazoval na dílo významného italského barokního architekta Francesca Borrominiho, například jeho Oratorio dei Filippini nebo Collegio di Propaganda Fide (obojí v Římě).[9]
V současnosti sídlí v paláci Italské velvyslanectví.
Odkazy
Reference
- ↑ Ústřední seznam kulturních památek České republiky [online]. Praha: Národní památkový ústav [cit. 2016-10-21]. Identifikátor záznamu 151228 : Palác Thun - Hohenštejnský. Památkový katalog. Hledat dokumenty v Metainformačním systému NPÚ [1].
- ↑ Ústřední seznam kulturních památek České republiky [online]. Praha: Národní památkový ústav [cit. 2016-10-21]. Identifikátor záznamu 156800 : Palác pánů z Hradce. Památkový katalog. Hledat dokumenty v Metainformačním systému NPÚ [2].
- ↑ a b c d VLČEK, Pavel a kol.: Umělecké památky Prahy. Malá Strana. Academia, Praha 1999, ISBN 80-200-0771-7, S. 297.
- ↑ a b VLČEK, Pavel a kol. (1999) S. 319.
- ↑ a b c d HORYNA, Mojmír: J. B. Santini-Aichel – Život a dílo. Karolinum, Praha 1998, ISBN 80-7184-664-3, S. 238
- ↑ PREISS, Pavel: Italští umělci v Praze, Panorama, Praha 1986, S. 289.
- ↑ a b c d e f g h i j k l HORYNA, Mojmír (1998) S. 240
- ↑ http://www.pis.cz/cz/praha/pamatky/nerudova_ulice
- ↑ a b c d e HORYNA, Mojmír (1998) S. 241
- ↑ POCHE, Emanuel: Matyáš Bernard Braun, Odeon, Praha 1986. S. 180–183
- ↑ a b c d e VLČEK, Pavel a kol. (1999) S. 320.
- ↑ Dle sdělení prof. Mojmíra Horyny
- ↑ HORYNA, Mojmír (1998) S. 241; VLČEK, Pavel a kol. (1999) S. 320.
- ↑ Archivovaná kopie. www.prazskekasny.net [online]. [cit. 2008-03-20]. Dostupné v archivu pořízeném dne 2007-08-10.
- ↑ VLČEK, Pavel a kol. (1999) S. 298.
- ↑ a b c d VLČEK, Pavel a kol. (1999) S. 299.
- ↑ VILÍMKOVÁ, Milada, LÍBAL, Dobroslav: Umění renesance a manýrismu – Architektura, in: POCHE, Emanuel, a kol. Praha na úsvitu nových dějin, Panorama, Praha 1988. S. 63–64.
- ↑ NAŇKOVÁ, Věra, HORYNA, Mojmír, VILÍMKOVÁ, Milada: Umění baroka – Architektura, in: POCHE, Emanuel, a kol. Praha na úsvitu nových dějin, Panorama, Praha 1988. S. 321.
Literatura
- KUBÍČEK, Alois. Pražské paláce. 1. vyd. Praha: V. Poláček, 1946. 231 s. S. 34–36, 214.
- POCHE, Emanuel; PREISS, Pavel. Pražské paláce. 2. vyd. Praha: Odeon, 1978. 399 s. S. 27, 28, 66, 67.
Externí odkazy
Obrázky, zvuky či videa k tématu Kolovratský palác na Wikimedia Commons - Kolovratský palác na webu italského zastupitelství Archivováno 18. 2. 2008 na Wayback Machine. (italsky)
